Price
£0 (25%) to £0 (75%)
Type
Semi-detached
Purchase Type
Shared
Bedrooms
2
Status
Coming Soon
Expand
Expand
Expand
Expand
Expand
Expand
Expand
Expand
Expand
Expand
Location
You can enjoy comfortable spacious living in our new Shared Ownership homes on the Queens Court development in Beverley, built by Barratt homes. We are proud to offer to the Shared Ownership market a collection of two and three bedroom homes. You can purchase a share as low as 25% up to 75% and pay an affordable rent on the remaining share. Getting your foot on the property ladder just got easier with Vico Homes.
Contact Telephone Number: 01977 788830
Development Address: Voase Way (off Willow Lane), Beverley, HU17 8FF
To see key information about this home click here (Info sheet coming soon)
Home description
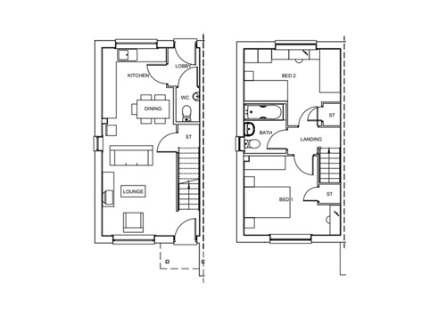
Plot 448 - The Chudleigh is a charming 2-bedroom, semi-detached home. On entering this home from the front you will walk into a cozy open plan living area. To maximise the space the living room sits to the front of the property and the modern kitchen sits to the rear. There is a convenient WC and storage cupboard on this floor.
To the first floor you will find two bedrooms with space to unwind and relax. A good-sized family bathroom with shower over bath and further storage space completes this floor.
Home features
- Two-bedroom, semi-detached home
- Open plan living
- 1-parking space
- Low 5% deposit (min £4,000)
- 10 year new build warranty
- Convenient commuter links to Hull, Scarborough, York and Leeds
- Good storage
- Rear garden
Specifications
Ground Floor
- Lobby 1.66m x 1.36m (5'4'' x 4'5")
- WC 1.49m x 1.01m x (4'9'' x 3'3'')
- Kitchen 3.05m x 3.08m max (10'0'' x 10'1'')
- Living/dining room 5.11m max x 4.20m max (16'8'' x 13'8'')
First Floor
- Bedroom 1 3.47m max x 4.20m (11'4'' x 13'8'')
- Bedroom 2 3.34m x 4.20m x (10'10'' x 13'8'')
- Bathroom 2.16m x 1.84m (7'1'' x 6'0'')

Disclaimer
Dimensions indicated are for guidance only and are not intended to be used for sizing, ordering appliances, furniture, carpets or curtains.
The internal specification may differ from the images displayed in this advert.
Carpets and furniture are not included unless stated in key features of the advert.
The images in this advert may be of another properpty of the same house type. Ask Sales Advisor for more information.
Local area information
Share information
| Share | Share Price | Rent (per month) |
|---|---|---|
| 25% | £0 | £0 |
| 50% | £0 | £0 |
| 75% | £0 | £0 |
Plus the following charges each month:
- Buildings insurance: £3.51
- Management fees: £5.37
- Service charge: £10.32
How to apply
You can check your eligibility for Shared Ownership on the gov.uk website or alternatively contact our Sales Team who will signpost you to an Independent Financial Advisor who will ask you some key questions to help you understand your eligibility as well as providing mortgage advice to support you on your Shared Ownership journey.
If you are eligible for Shared Ownership and would like to reserve one of our Shared Ownership Homes you will need to contact Metro Finance by calling 0114 270 1444 or visiting the Metro Finance Website.
Once you have received a Mortgage in Principle please contact Vico Homes who will help to guide you through your Shared Ownership journey.
Steps to reservation
Guide to Shared Ownership
For further information or to register your interest contact [email protected] or call 01977 788830.